17. November 2025

Endlich abschalten!

Großzügiges Ferienhaus mit Zukunftspotenzial

Der Arbeitsalltag von Dr. Charlotte und Dr. Andreas Pflüger ist oft stressig und mental anstrengend. Häufig arbeitet das Ärztepaar bis weit in den Feierabend hinein. Einen Ausgleich zum Berufsleben finden die Eheleute in ihrem neuen Ferienhaus: Am Rande eines kleinen Dorfs gelegen, mit Weitblick auf die bewaldeten Hügel des Westerwalds, können sie hier der Hektik der Großstadt entfliehen und neue Energie tanken. Wer jetzt eine kleine Hütte mit durchgehender Holzfassade und kleinen Fenstern vor Augen hat, der wird erstaunt sein: Das Feriendomizil der Pflügers entpuppt sich als großzügiges und lichtdurchflutetes Einfamilienhaus im modernen Landhausstil, das alles bietet, was ein Paar zum Leben und Wohlfühlen braucht. „Eigentlich dachten wir, ein Ferienhaus sei zu belastend für uns“, verrät Charlotte Pflüger. „Mit dem Auszug unseres Sohnes und Blick auf die Zukunft kam uns dann der Gedanke, dass wir später ganz in das neue Haus ziehen könnten.“ 

Kein Haus von der Stange
Das Feriendomizil ist bereits das dritte Haus, das die Eheleute gebaut haben. Aufgrund der positiven Erfahrungen stand von vornherein fest, dass es ein Fertighaus werden sollte. „Entscheidend waren für uns die Planungssicherheit und die schnelle Umsetzbarkeit“, berichtet Charlotte Pflüger. Den passenden Baupartner fand das Paar in WeberHaus. „Wir wollten uns keinem Baukastensystem fügen, sondern individuell bauen. Mein Mann hatte den Grundriss bereits skizziert. Mit unseren eigenen Vorschlägen im Gepäck sind wir auf WeberHaus zugegangen. Unser Entwurf wurde nur geringfügig geändert, das hat uns sehr gefreut. Außerdem fühlten wir uns mit einem großen und soliden Unternehmen sicher aufgehoben.“

Natürlich ökologisch
Besonderen Wert legte das Ehepaar auf die Themen Wohngesundheit und Energieeffizienz. Optimale Voraussetzungen für einen geringen Energieverbrauch und eine schadstofffreie Umgebung schafft die Gebäudehülle ÖvoNatur Therm, die Standard in jedem WeberHaus ist. Sie besteht hauptsächlich aus dem ökologischen und nachwachsenden Baustoff Holz, der von Natur aus gute Wärmedämmeigenschaften besitzt. Dank des Wand- und Dachaufbaus mit Holzfaserdämmung geht im Winter kaum Wärme verloren, die sommerliche Hitze bleibt dagegen draußen. Alle eingesetzten Materialien werden auf ihre Umwelt- und Gesundheitsverträglichkeit geprüft. Das gesündere Raumklima, das in einem WeberHaus herrscht, wird durch die Zertifizierungen von drei unterschiedlichen Instituten belegt.

Modernes Landhaus
Nähert man sich dem Haus über die Dorfstraße, könnte man meinen, es handele sich um einen Bungalow mit Garagenanbau. Erst in der Seitenansicht zeigt sich, dass das Gebäude sanft in einen Hang hineingeschoben wurde. So entsteht ein lichtdurchflutetes Untergeschoss mit Zugang in den Garten. Schon von außen wird die Verbundenheit der Eheleute zur Natur und zur Region deutlich: Blickfang sind die partiellen Holzverschalungen, die dem Neubau einen heimeligen, warmen Charakter verleihen. „Sie bestehen aus Altholz, das aus alten Häusern und Schuppen geborgen wurde“, berichtet Charlotte Pflüger. Die Geweihe über dem Garagentor und unter dem Terrassendach spiegeln die gemeinsame Leidenschaft zur Jagd wider.

Oben schlafen …
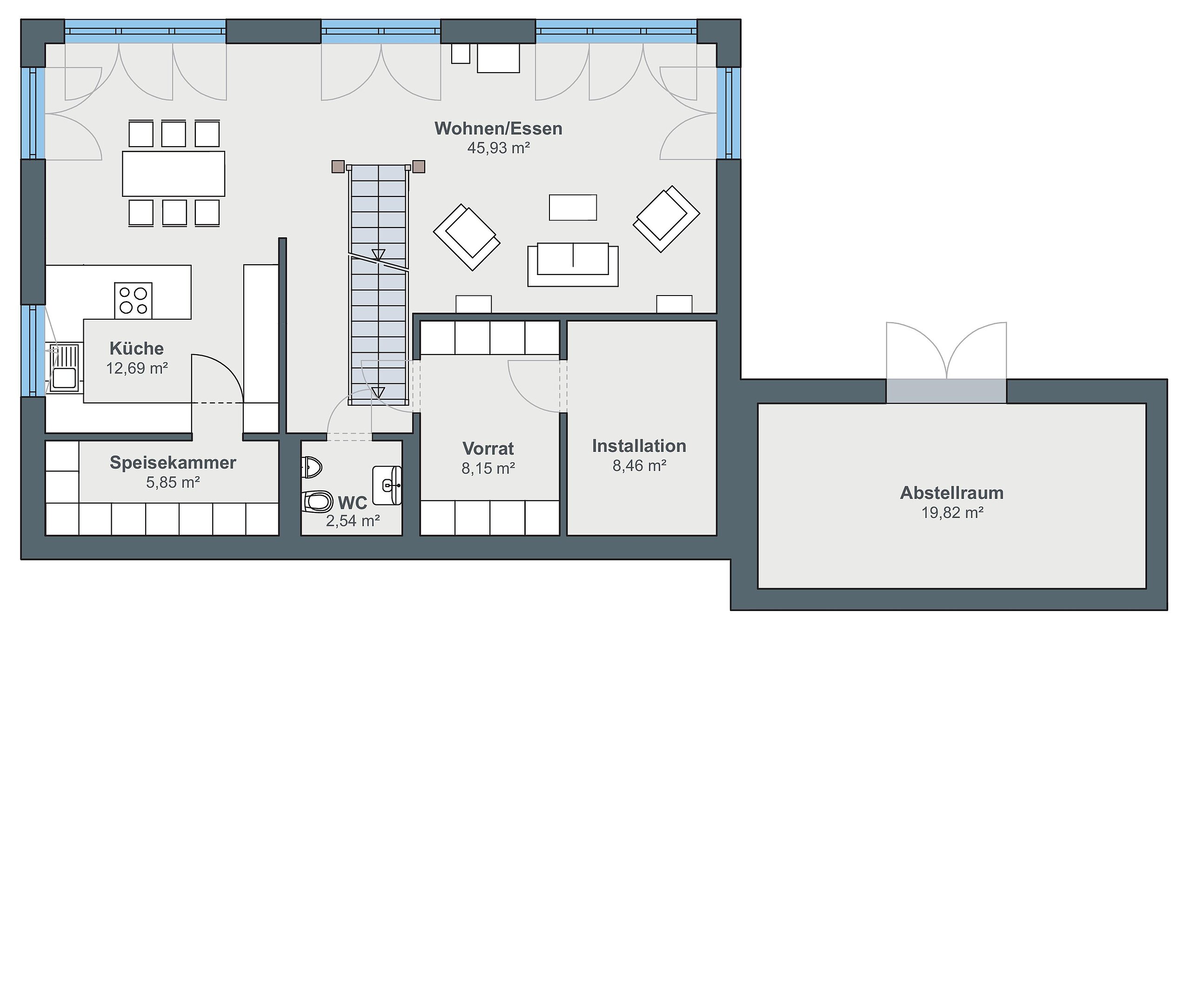
Betreten wird das Haus über den mittig platzierten Eingangserker. Hinter der Haustür findet man sich in einer repräsentativen, hellen Diele wieder, die mit den ländlichen, teilweise antiken Möbeln und Dekoobjekten sowie den großzügigen Holzoberflächen bereits einen Vorgeschmack auf das weitere Interieur gibt. „Zentrales Element in der Planung meines Mannes ist die Treppe. Sie trennt den Schlafbereich mit Bad und Sauna auf der linken Seite vom kombinierten Gäste-, Arbeits- und Sportzimmer und dem Gästebad“, erklärt Charlotte Pflüger. Komplettiert wird das Raumprogramm von einer Garderobe und einem Jagdzimmer. „Hier werden die jagdlichen Gegenstände aufbewahrt, zudem gibt es einen Durchgang zur Garage. So kommen schmutzige Stiefel und Kleidungsstücke gar nicht erst ins Haus.“ 

… unten wohnen
Das Untergeschoss zeigt sich genauso hell und offen wie die darüberliegende Etage. Die Treppe führt direkt in den weitläufigen Wohn-, Ess- und Kochbereich. Die breite Fensterfront lässt Innen- und Außenraum miteinander verschmelzen und sorgt so für ein beeindruckendes Raumgefühl. „Wir schauen aus dem Haus in die Natur und umgekehrt“, freut sich Charlotte Pflüger. Die Einrichtung wurde mit Liebe zum Detail zusammengestellt. Wo man auch hinblickt, überall ist der Bezug zur Natur und zur Jagd erkennbar – vom Couchtisch in Form eines Baumstamms bis hin zum Läufer mit Hirschmotiv. Die Wände zieren zahlreiche Geweihe von Rot- und Rehwild. Der Lieblingsplatz der begeisterten Hobbyköche ist die moderne Küche mit dem großen Küchenblock. Was man nicht ahnt: Hinter der Küchenfront verbirgt sich eine Back-up-Küche mit Kühlschrank, zusätzlicher Arbeitsfläche und Hängeschränken. „Die versteckte Küche ist sehr praktisch, wenn man Gäste hat. So stören benutzte Töpfe, Teller und Co. nicht das gesellige Beisammensein“, betont Charlotte Pflüger.

Smart geregelt
Für ein Plus an Komfort und Sicherheit im Haus sorgt das Smart-Home-System. „Da das Gebäude nicht dauerhaft bewohnt ist, nutzen wir die Anwesenheitssimulation“, erklärt die Hausbesitzerin. „Zudem war uns wichtig, dass wir viele Funktionen aus der Ferne bedienen können. Beispielsweise fahren wir die Temperaturen nach oben, sobald wir uns auf den Weg zu unserem Ferienhaus machen. Wenn wir ankommen, ist es bereits wohlig warm.“ Die notwendige Energie für die gesamte Technik erzeugen Charlotte und Andreas Pflüger mithilfe der leistungsstarken Photovoltaikanlage auf dem Dach selbst. Überschüssiger Strom fließt zunächst in den Stromspeicher, wo er zwischengespeichert wird, bis die Eheleute ihn benötigen.

„Von unserem Ferienhaus sind wir hellauf begeistert“, so das positive Fazit von Charlotte Pflüger. „Die Kombination aus modernen Elementen und Jagdhaus kommt auch in der Nachbarschaft und bei Freunden gut an. Sogar der Bürgermeister hat das Haus gelobt.“

WeberHaus Logo Lade-Animation