11. June 2019

Idylle in der Großstadt

Eine Wohlfühloase für die ganze Familie

Als mit der Geburt des Sohnes die frühere Mietwohnung zu klein wurde, entschied sich das Ehepaar Greve ein Eigenheim ganz nach ihren Vorstellungen zu bauen: Der Baupartner WeberHaus war schnell gefunden. „Neben dem besten Preis-Leistungs-Verhältnis hat uns die Möglichkeit, ein frei geplantes Architektenhaus mit der Realisierung all unserer Wünsche zu bauen, überzeugt. Noch dazu in ökologischer Holzfertigbauweise“, erinnert sich Ulrike Greve. Die Suche nach einem passenden Grundstück war hingegen nicht ganz so leicht. „Berlin ist ein sehr umkämpfter Markt und häufig sind die Baugrundstücke unverhältnismäßig teuer“, berichten die Hausbesitzer. Aber Familie Greve hatte Glück, fand einen Bauplatz, der in Größe, Preis und Lage nahezu perfekt zu ihren Vorstellungen passte und griff zu.

 

 

Nach den eigenen Vorstellungen

Ihr neues Domizil wurde direkt auf das Grundstück zugeschnitten, sodass der vorhandene Platz optimal genutzt wird. Bei der Fassadengestaltung folgten sie der Idee des Architekten, Holzelemente einzusetzen. Die ansonsten weiße Fassade des anderthalbgeschossigen Eigenheims ist dadurch schön aufgelockert und einzigartig. Ein grau eingedecktes Satteldach krönt den Baukörper und eine Doppelgarage ergänzt das Einfamilienhaus. Überhaupt war das Ehepaar mit dem Planungsprozess des Hauses mehr als zufrieden: „Zu jeder Zeit wusste man, welche Schritte als nächstes folgen werden – das hat uns wirklich gut gefallen“, so Frédéric Greve. An einem heißen Sommertag Ende August wurde ihr Traum vom Haus innerhalb weniger Tage gebaut, sodass die Familie bereits nach etwa drei Monaten einziehen und Weihnachten in ihren eigenen vier Wänden feiern konnte.

 

 

 

Behaglichkeit trifft Modernität

Ihr Zuhause richteten sich die Greves gemütlich ein. Gleichzeitig setzten sie auf klare Formen und Modernität, die aber nicht steril wirken. So entschieden sie sich im Erdgeschoss für einen warmen Holzboden. Nur im Flur und Duschbad wurden hellgraue Fliesen verlegt. Über weiße Flügeltüren mit Glaseinsatz gelangt man in den rund 55 Quadratmeter großen Wohnbereich. Auf dem großen Sofa hat die vierköpfige Familie viel Platz zum Toben und Lümmeln. Ein Kamin als Raumteiler zwischen Wohn- und Essbereich war ein großer Wunsch der Bauherren. „Hier kommt die ganze Familie zum Spielen, Lesen und Feste feiern zusammen – einer unserer Lieblingsplätze im Haus“, erzählt Ulrike Greve. Ess- und Kochbereich sind offen gestaltet. Bei der Küche haben sich die Eheleute für eine Kombination aus weißen und braunen Schränken und eine Holzarbeitsplatte entschieden – modern und zugleich behaglich. Große Fensterfronten öffnen den Blick in den Garten. Diese kleine, grüne Oase mit Obststräuchern genießt die Familie in vollen Zügen.

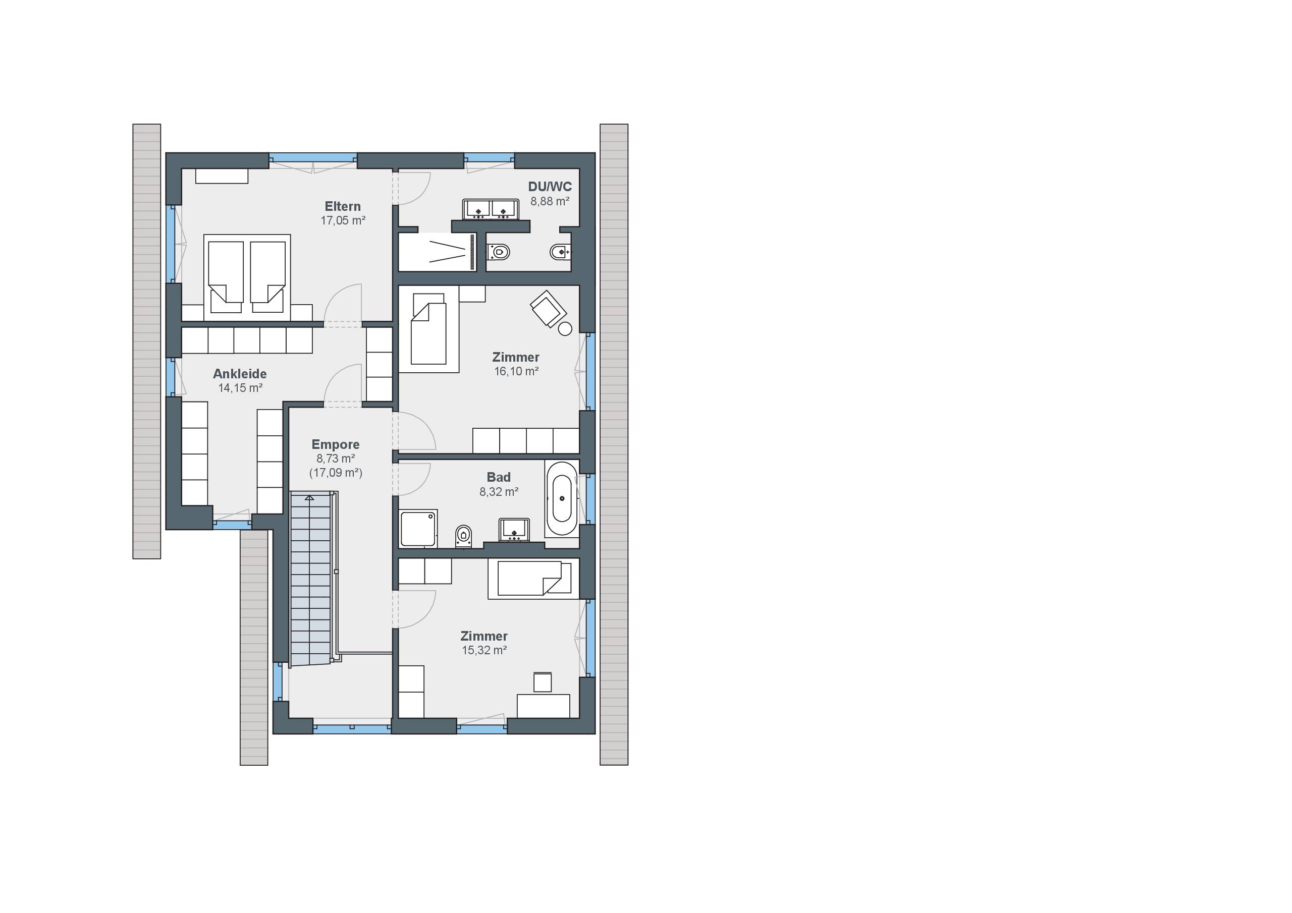
Im Dachgeschoss liegen Schlaf-, Bade- und zwei Kinderzimmer sowie eine große Ankleide. Das Elternbad en Suite verfügt über eine Walk-In-Dusche und dank der T-Lösung ist die Toilette geschickt versteckt. Aus praktischen Gründen und mit Blick in die Zukunft haben die Kinder Rafael und Mariella ihr eigenes Badezimmer mit Dusche und Badewanne. Einen großen Wunsch hat sich Frédéric Greve mit dem Wellness-Bereich im Keller erfüllt. „Meine Frau und ich sind große Saunafans. Aber auch unsere Kinder haben große Freude daran“, erzählt der Hausbesitzer. Hier kann man die Seele baumeln lassen. Auf rund 40 Quadratmetern befinden sich Relaxliegen, Fußbäder, Dusche, Dampfbad und Sauna.

 

 

 

Hervorragende Dämmeigenschaft

Bei der Planung ihres Hauses legte das Ehepaar außerdem großen Wert auf Energieeffizienz. Deshalb ist ihr Architektenhaus mit der ökologischen Gebäudehülle „ÖvoNatur Therm“ ausgestattet. Sie ist noch dämmstärker als die im Standard verbaute „ÖvoNatur“. „Grund für unsere Entscheidung war die Einsparung von Energiekosten. Heute können wir aus eigener Erfahrung bestätigen, dass die Dämmeigenschaft eines Weber-Hauses hervorragend ist“, so der Bauherr. Ein weiterer, positiver Effekt des Holzbaus sind ein gutes Raumklima und warme Oberflächen. Bei der Heiztechnik hat er sich für eine Luft-Wasser-Wärmepumpe mit kontrollierter Be- und Entlüftungsanlage inklusive Wärmerückgewinnung entschieden. Zudem verfügt das Einfamilienhaus über die Haussteuerung WeberLogic 2.0 mit wibutler. Damit können Lichtszenen, Rollläden, Einzelraum-Temperaturregelungen, Anwesenheitssimulationen und vieles mehr gesteuert werden. Alle vernetzten Funktionen werden über eine zentrale Schnittstelle per Tablet oder Smartphone von zuhause aus oder von unterwegs gemanagt.

 

 

 

Rundum glücklich

Abschließend lässt sich sagen, dass Ulrike und Frédéric Greve sich ihren ganz persönlichen Haustraum erfüllt haben. „Wir freuen uns immer wieder aufs Neue, wenn wir vor unserem Eigenheim stehen“, erzählen die beiden strahlend. „Die Architektur mit dem Doppeldach und der eingeschobenen Garage gefällt uns nach wie vor sehr gut.“

 

WeberHaus Logo Lade-Animation