01. April 2026

Wohnen wie im Urlaub

Mediterrane Villa mit luxuriösem Wellnessbereich

Das Leben als Landwirt ist anstrengend: Der Alltag ist geprägt von körperlicher Arbeit im Stall und auf den Feldern, am Abend warten meist noch umfangreiche Büro- und Managementaufgaben. An Urlaub ist da oft nicht zu denken. Aus diesem Grund haben sich Simone und Mathias Müller den Urlaub in Form einer mediterranen Villa direkt auf den eigenen Hof geholt. 

Mittelmeerfeeling auf dem Bauernhof
Fährt man die Zufahrt zum neuen Eigenheim der Müllers entlang, entsteht der Eindruck, man befände sich direkt in der Toskana: Schon von Weitem heißt die freundliche, hellgelbe Putzfassade Bewohner und Besucher willkommen. Über den Eingangsbereich spannt sich ein schützendes Vordach, das – wie das Zeltdach – mit dunklen Schindeln eingedeckt wurde. Letztere setzen einen schönen Kontrast zur hellen Fassade und verleihen dem Haus zudem einen modernen Touch. Absoluter Blickfang sind die beiden dekorativen, weißen Säulen im antiken Stil, die das Vordach tragen. Die gleichen Säulen finden sich auch auf der Gartenseite wieder: Hier stützen sie die Terrassenüberdachung, die sich über die gesamte Hausbreite erstreckt. On Top befindet sich ein großer Balkon mit Blick über den Bauernhof mitsamt Wiesen und Feldern. 

Energieeffizienz inklusive
Geplant und gebaut wurde das neue Familiendomizil von WeberHaus. Die Entscheidung für den Fertighausspezialisten aus dem baden-württembergischen Rheinau-Linx ist schnell gefallen: „WeberHaus hat einen sehr guten Ruf“, berichtet Simone Müller. „Auch von Nachbarn und Verwandten haben wir nur Positives gehört.“ Ein wichtiger Aspekt bei der Hausplanung war die Energieeffizienz. Die Basis für einen sehr geringen Energieverbrauch legt die Gebäudehülle ÖvoNatur Therm, die bei allen Weber-Häusern Standard ist. Sie besteht hauptsächlich aus dem nachwachsenden und klimaneutralen Rohstoff Holz, der von Natur aus sehr gute Wärmedämmeigenschaften mitbringt. Der Wand- und Dachaufbau mit Holzfaserdämmung sorgt das ganze Jahr über für angenehme Temperaturen: Im Winter hält die Gebäudehülle die Wärme im Innern, die sommerliche Hitze bleibt dagegen draußen. Kombiniert wird der Baustoff mit weiteren natürlichen Materialien, die übrigens alle auf ihre Umwelt- und Gesundheitsverträglichkeit geprüft sind. Das gesündere Raumklima, das in einem WeberHaus herrscht, wird durch die Zertifizierungen von drei unterschiedlichen Instituten belegt.
Ergänzt wird das Energiekonzept von einer effizienten Technik. Ein Must-Have war eine leistungsstarke Photovoltaikanlage auf dem Dach, die einen Großteil des benötigten Haushaltsstroms erzeugt. 

Interieur mit Stil
Betreten wird die Villa über eine repräsentative Diele, die mit großformatigen Fliesen im Betonlook ausgestattet wurde. Vorbei an der geraden Holztreppe führt sie zu einer stylischen Doppelflügeltür mit Sichtfenster. Dahinter verbirgt sich der weitläufige Wohn-, Ess- und Kochbereich, der von bodentiefen Fenstern mit Tageslicht geflutet wird. Von den langen Holzdielen am Boden über die Lederstühle bis hin zur Deko: Das Interieur wird geprägt von natürlichen Materialien. Kombiniert mit modernen Elementen wie der Wand in Sichtbetonoptik oder dem Kaminofen in Form eines Raumteilers entsteht ein stilvolles und modernes Ambiente. „Inspiration für die Gestaltung haben wir uns im Internet und in Katalogen geholt“, berichtet Simone Müller. „Viele Ideen stammen auch aus den Ausstellungshäusern in der World of Living.“ Die Küche hat die Familie über WeberHaus bezogen. „Wir wollten alles aus einer Hand“, erklärt die Hausbesitzerin. Sehr praktisch ist der separate Zugang zur Diele – so müssen die beiden Landwirte die schweren Wochenendeinkäufe nicht erst durch das ganze Haus schleppen. Neben den Gemeinschaftsräumen liegen ein Gästezimmer, ein Gästebad mit Dusche sowie ein Arbeitszimmer für die Büroarbeit.
Die privaten Ruhe- und Schlafräume der vierköpfigen Familie befinden sich unter dem Dach. Um eine helle Empore gruppieren sich ein großes Bad mit abgesenkter Eckbadewanne, das Elternschlafzimmer inklusive Ankleide, zwei Kinderzimmer sowie ein weiteres Gästezimmer. Sowohl vom elterlichen Schlafzimmer als auch von einem der Kinderzimmer gelangt man auf den Balkon.

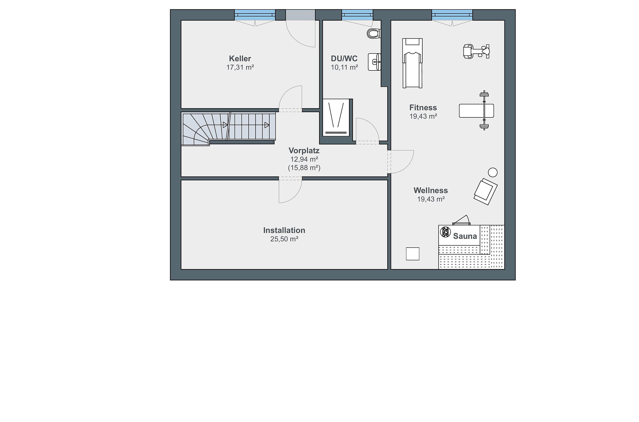
Wellness im Keller
Entspannung finden die vier Bewohner nicht nur auf den oberen Etagen des Hauses, sondern auch im Untergeschoss. Denn hier haben sie sich – als Ausgleich zur fordernden Arbeit auf dem Hof – eine wahre Wellnessoase eingerichtet. Gern powern sich die Familienmitglieder im heimischen Fitnessstudio aus. Vom Boxsack bis zu den Hanteln – hier gibt es für jedes Fitnesslevel das passende Gerät. Nach dem Workout wird bei einem wohltuenden Saunagang neue Kraft getankt.

Keine Frage, Familie Müller fühlt sich rundum wohl in ihrer mediterranen Villa. Und wie finden Freunde und Verwandte das Haus? „Sie sagen es sein ein Palast“, freut sich Simone Müller. „Und sie kommen gerne wieder.“

WeberHaus Logo Lade-Animation